Pisos – La Sagrada Família – Barcelona Capital – 495.000€
Descripción
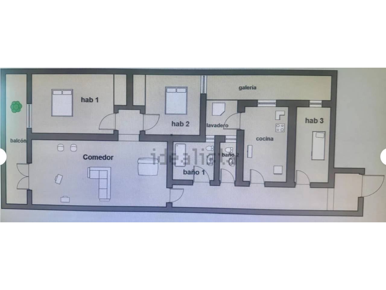
Piso muy cerca de la Sagrada Familia, nuevo totalmente reformado, con acabados de gran calidad. Actualmente se compone de comedor con aire acondicionado con sol al mediodía exterior a balcón situado en a Gran Patio de Manzana típico del Eixample. Una primera habitación doble con mucha luz y gran armario empotrado nuevo a estrenar exterior a balcón. Una segunda habitación doble con armario empotrado nuevo con buen tamaño. La cocina y la galería han sido totalmente reformadas aumentando el espacio, disponiendo de horno y lavaplatos integrado. Baño de diseño con gran plato de ducha, y aseo también de gran belleza. Instalaciones nuevas con calefacción en toda la vivienda. Suelos de parquet y puertas, paredes y techos también han sido reformadas. Piso para poner tus muebles y entrar a vivir. Situado en la calle Castillejos, en finca señorial con servicio de portería. Muy cerca de todo tipo de locales, supermercados, colegios, etc…y mu bien comunicado mediante transporte publico, a dos calles de la parada de Metro de Sagrada Familia.
*El precio de venta al público indicado no incluye impuestos ni gastos de compraventa, tales como ITP/IVA, AJD, notaría y registro, que serán asumidos por la parte compradora salvo pacto en contrario.
Asimismo, no se incluyen en el precio los muebles, electrodomésticos ni elementos decorativos, salvo que se indique expresamente lo contrario.
La información contenida en este anuncio es meramente orientativa, no contractual, y puede estar sujeta a modificaciones o errores involuntarios.
Se facilitará al interesado información detallada y desglosada del coste total de la operación conforme a la normativa vigente. API nº 2690 AICAT nº 1223.
Estado del inmueble: reformado. Según catastro: superficie total: 91m2, superficie vivienda 80m2. Zona tensionada: Sí. Condición de gran tenedor: No. Certificado energético: E/E (consumo energía 151/emisiones 25) Valido hasta 23/11/2034. Registro NS5ZW0***. Cédula de habitabilidad: CHB07021824***. Superficie útil: 70.21. Estado: Otorgada (Vigente). Ocupación máxima: 5. Fecha resolución: 25-11-2024. Fecha fin vigencia: 25-11-2039.
De conformidad con el artículo 20.1.c) del TRLGDCU y con el Real Decreto 515/1989, el precio anunciado no incluye impuestos ni gastos de la compraventa, salvo indicación expresa. Si la operación está sujeta a IVA, se aplicará el tipo vigente conforme a la Ley 37/1992 y, cuando proceda, AJD. Si la operación está sujeta a ITP, este se liquidará conforme al Real Decreto Legislativo 1/1993 y a la normativa tributaria vigente en Cataluña. Los gastos de notaría y registro se abonarán según arancel, de conformidad con el Real Decreto 1426/1989 y el Real Decreto 1427/1989. La parte compradora no asumirá los gastos que legalmente correspondan a la parte vendedora.
Características
Extras
Muy eficiente
Poco eficiente
NOTA: La información de esta propiedad puede haber cambiado, por tanto no somos responsables de la fiabilidad de la información, por favor contacte con nosotros para conocer las características exactas.




















